2025
Goshen
9L28603D
Available Now For
$132,135
MANUFACTURED HOME DESCRIPTION
MANUFACTURED HOME OPTIONS
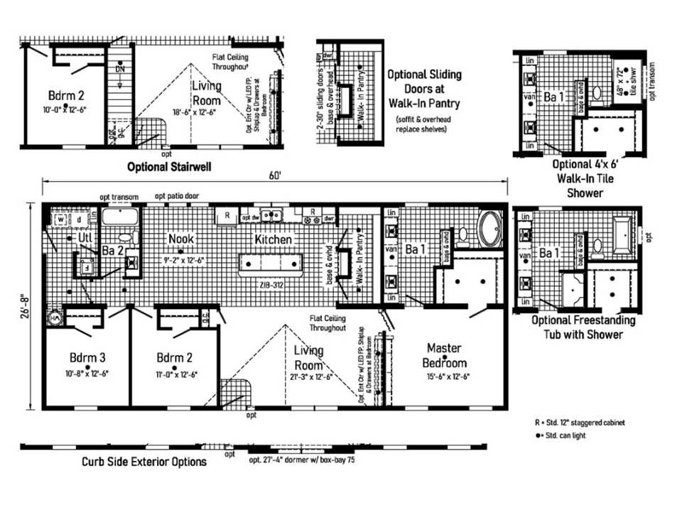
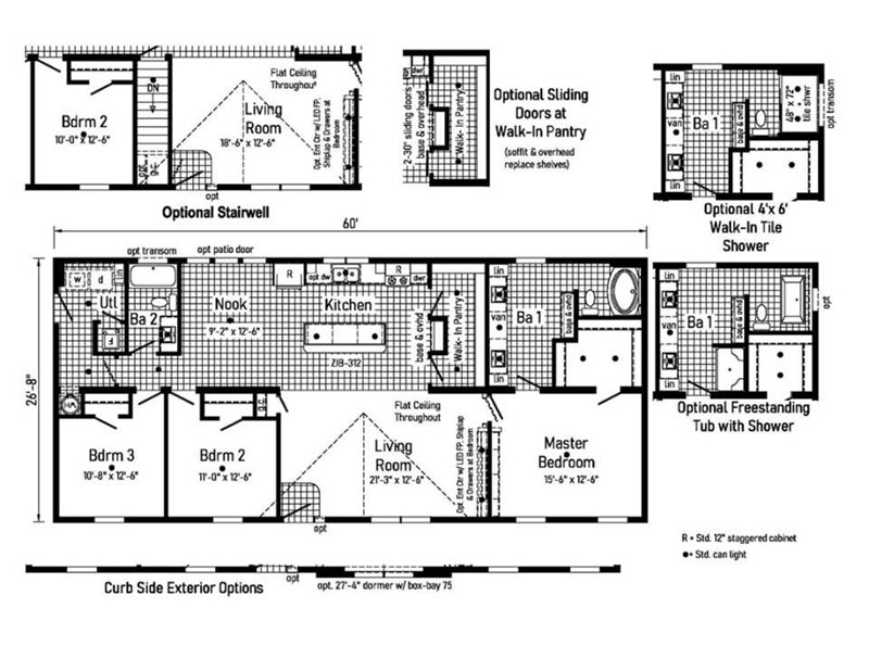
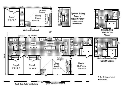
The Limited 3 is from the old line and has been replaced by the Landmark Series Essence 3. The home has 3-bedrooms, 2-bathrooms, 1,600 square-feet with an open-concept design, a spacious kitchen, and a private master suite. Key features often include a pantry with barn doors, a walk-in shower in the master bath, a large master closet, and stainless steel appliances. The home is built to be energy-efficient for Thermal Zone 3.
Sales price includes the wholesale price of the Home Only. As we deliver to various parts of Illinois, Missouri, Kentucky and Indiana, we want to charge for only what you need to pay for. We offer to package a price for you that can include Grading/Backfill, Delivery, Anchor & Set, Crane work, Concrete Footer Foundation, Ext./Int. Trim Out, Heat Pump/AC, Skirting (Block, Vinyl, Wood, Metal), Front/Rear Steps, Decks, Plumbing Connections, Sewer/Septic Connections, Septic Installs, Meter Box/Electric Connections, Driveways, Basements, Garages/Storage Sheds, Gutters and HUD Inspections and State Registration.

