MANUFACTURED HOME DESCRIPTION
MANUFACTURED HOME OPTIONS
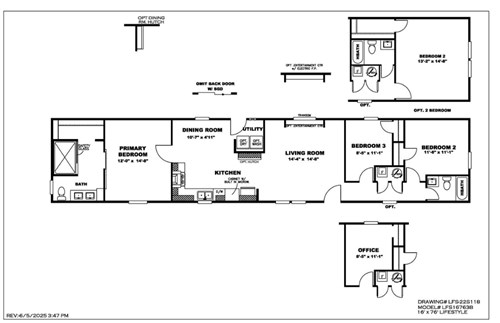
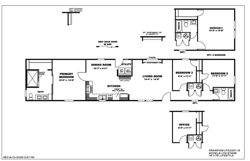
The Ultimate Shower House by Clayton Maynardville is a 1,165 sq. ft., 2-bedroom, 2-bathroom manufactured home designed for comfort, featuring a signature spa-like primary bathroom with an oversized ceramic-tiled shower. This 16'x76' single-section home includes a modern, open-concept kitchen and a spacious living area.
Sales price includes the wholesale price of the Home Only. As we deliver to various parts of Illinois, Missouri, Kentucky and Indiana, we want to charge for only what you need to pay for. We offer to package a price for you that can include Grading/Backfill, Delivery, Anchor & Set, Crane work, Concrete Footer Foundation, Ext./Int. Trim Out, Heat Pump/AC, Skirting (Block, Vinyl, Wood, Metal), Front/Rear Steps, Decks, Plumbing Connections, Sewer/Septic Connections, Septic Installs, Meter Box/Electric Connections, Driveways, Basements, Garages/Storage Sheds, Gutters and HUD Inspections and State Registration.

